🏡Chalet bois 44/100/44 mm 100m² – Modèle N°180724
Le chalet bois 44/100/44 mm 100m² est un modèle spacieux conçu pour offrir un confort durable et une excellente performance structurelle. Ce chalet combine madriers épais, menuiseries premium et une grande terrasse intégrée, ce qui en fait un choix idéal pour une habitation, un gîte ou un projet locatif. Sur notre site, vous pouvez également consulter d’autres modèles similaires dans la catégorie Plans & 3D sur mesure . Pour comparer avec d’autres constructions bois en Europe, vous pouvez consulter des références externes sur des sites spécialisés en habitat naturel .
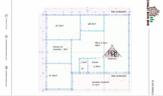
📏 Dimensions du chalet bois 44/100/44 mm 100m²
Ce chalet bois 44/100/44 mm 100m² mesure 9624 x 10624 mm et dispose d’une hauteur de murs de 2295 mm. La pente de toit est de 15°, pour une hauteur totale de 3652 mm. Les madriers 44+100+44 mm assurent une très bonne rigidité et permettent d’ajouter facilement une isolation. Le chalet inclut une avancée de toit de 200 mm et une superficie totale de toiture de 110.9 m².
🌿 Terrasse & aménagements
La terrasse de 16.01 m² est directement intégrée à la structure du chalet bois 44/100/44 mm 100m². Le plancher intérieur est réalisé en lames de 28 mm, et les voliges de toiture en 19 mm. Les pannes de toit 70×190 mm (9 pièces) garantissent une excellente solidité pour tout type de couverture, y compris le bac acier.
🪟 Menuiseries Premium
Ce chalet bois 44/100/44 mm 100m² est livré avec des menuiseries premium 3/20/3 mm ainsi que deux grandes portes coulissantes en PVC. Les nombreuses ouvertures apportent une très belle luminosité à l’ensemble.
💰 Prix & options
Le prix livré est de 48 000 €. Plusieurs options sont disponibles : isolation toiture 200 mm, isolation murs 100 mm, isolation du sol 150 mm ainsi que la couverture bac acier. Le total avec options est de 61 735 €.
📏 Caractéristiques techniques
Dimensions
-
Largeur x longueur : 9624 x 10624 mm
-
Hauteur des murs : 2295 mm
-
Pente de toit : 15°
-
Hauteur totale : 3652 mm
-
Avancée de toit : 200 mm
Structure & matériaux
-
Épaisseur des madriers : 44 + 100 + 44 mm
-
Cloisons : madriers 44 mm
-
Voliges de toiture : 19 mm
-
Lames de plancher : 28 mm
-
Pannes de toit : 70 x 190 mm (9 pièces)
-
Superficie de toiture : 110.9 m²
Terrasse
-
Surface : 16.01 m²
-
Plancher de terrasse inclus
🪟 Menuiseries & ouvertures
Qualité des menuiseries
-
Menuiseries Premium 3/20/3 mm
-
2 portes coulissantes en PVC (haute qualité, excellente luminosité)
Dimensions & quantités
-
Fenêtres :
-
1420 x 1185 mm (x3)
-
820 x 1185 mm
-
645 x 645 mm
-
-
Portes / coulissantes :
-
1820 x 1995 mm (x2 – coulissantes PVC)
-
920 x 1995 mm
-
850 x 1975 mm (x4)
-
800 x 1975 mm
-
💰 Tarifs
Prix livré suivant descriptif ci-dessus : 48 000 €
Options disponibles :
-
Structure isolation toiture 200 mm : + 4 340 €
-
Laine pour toiture 200 mm : + 2 100 €
-
Structure isolation murs 100 mm : + 1 615 €
-
Isolation du sol 150 mm pour dalle béton : + 1 580 €
-
Couverture bac acier avec accessoires + gouttières : + 4 100 €
➡️ Total avec options : 61 735 €
📐 Plans + descriptif détaillé
Les plans complets et personnalisés ainsi que le descriptif sur mesure sont disponibles sur simple demande.














Avis
Il n’y a pas encore d’avis.