Chalet N°190226 – 36 m² 🏡 (44/100/44 mm) – 1 chambre / 29.5m² habitable
Ce chalet bois de 36 m² est spécialement conçu pour un usage en camping, alliant design, confort et fonctionnalité réalisé sur mesure
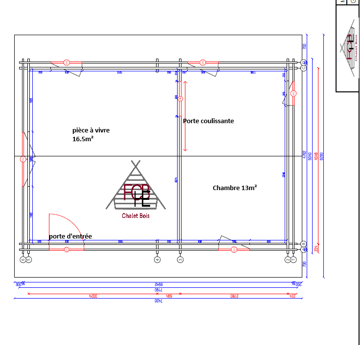
Compact et optimisé, il offre un espace agréable avec une chambre et la possibilité d’aménager la salle de bain directement dans la partie chambre, selon le choix du client.
Structure et matériaux :
-
Les madriers sont en 44/100/44 mm, garantissant solidité et isolation naturelle.
-
Le plancher est en bois massif de 28 mm, stable et durable.
-
Les voliges de toit font 19 mm et les pannes mesurent 70 x 190 mm (5 pièces).
-
La pente de toit est de 13°, avec une hauteur totale de 3,424 m, pour un volume intérieur confortable.
-
Avancée de toit : 700 et 200 mm.
-
La superficie de toiture est de 47,9 m².
-
Aucune terrasse n’est prévue pour ce modèle, ce qui optimise l’espace intérieur et le budget.
Isolation :
Ce projet prévoit les structures pour l’isolation sous le toit et sous le plancher, mais le client souhaite se charger lui-même de l’isolation avec de la Laine de Bois. Cette flexibilité permet à chacun de choisir le matériau et l’épaisseur adaptés à ses besoins.
Cloisons et aménagement intérieur :
-
Les cloisons sont en madriers de 44 mm.
-
Le client a choisi de créer la salle de bain directement dans la partie chambre, offrant une solution pratique et modulable selon l’aménagement souhaité.
Menuiseries et finitions :
-
Menuiseries en bois double vitrage, de qualité Premium (4/20/4 mm).
-
Fenêtres et portes :
-
625 x 625 mm : 1 fenêtre
-
800 x 1165 mm : 3 fenêtres
-
900 x 1975 mm : 1 porte d’entrée
-
1400 x 1935 mm : 1 double porte-fenêtre
-
900 x 1995 mm : 1 porte-fenêtre coulissante
-
Livraison et options :
-
Prix livré selon descriptif : 20 400 €
-
Options disponibles :
-
Structure pour isolation toiture 200 mm sans laine de Roche : +1 500 € (pare-pluie, pare-vapeur, accessoires inclus)
-
Isolation du sol 150 mm sans laine de Roche : +95 € (pare-pluie, pare-vapeur, accessoires inclus)
-
Bac acier : +1 100 €
-
Gouttières : +850 €
-
Éléments de fixation : +50 €
-
Total avec options : 23 995 €
Ce chalet bois pour camping est un exemple parfait de nos réalisations sur mesure : compact, robuste, modulable et conçu pour répondre aux besoins spécifiques de chaque client, tout en offrant la possibilité d’adapter l’isolation et l’aménagement intérieur selon vos envies.


















Avis
Il n’y a pas encore d’avis.