🪵 Chalet bois 68 mm Ibérica T2 – Compact, lumineux et conçu pour le confort
Le chalet bois Ibérica T2 en madriers 68 mm est une solution idéale pour créer un espace de vie chaleureux, compact et bien agencé. Parfait pour une résidence secondaire, un bureau indépendant ou un gîte, ce modèle se distingue par ses lignes sobres, ses finitions soignées et ses équipements complets. Avec ses 44,4 m² habitables, sa terrasse de 6,1 m² et ses 2 pièces séparées, il offre un excellent équilibre entre confort et fonctionnalité.
🔹 Un chalet bois 68 mm pensé pour vos projets
Le modèle Ibérica T2 est conçu en bois massif de haute qualité, avec des madriers de 68 mm, garantissant une excellente stabilité et une isolation naturelle. Sa toiture en bardeaux bitume lui apporte une finition esthétique tout en assurant une bonne étanchéité.
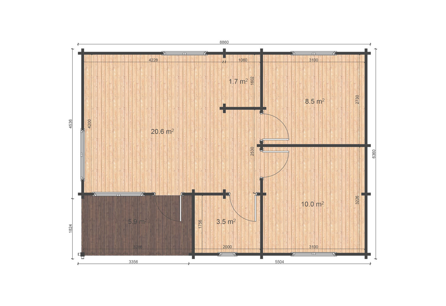
📐 Dimensions extérieures : 6,36 × 8,86 m
🏗️ Hauteur faîtage : 3,10 m
🌞 Terrasse couverte : 6,1 m²
🧱 Surface intérieure : 44,4 m²
🚪 4 portes : 1 vitrée (50 %), 3 pleines bois
🪟 6 fenêtres : 5 doubles, 1 simple
📦 Livraison partout en France métropolitaine
✅ Les points forts du Chalet Ibérica T2
-
1 chambre + 1 bureau ou espace de vie modulable
-
Bois massif 68 mm, certifié FSC
-
Plancher 28 mm et toiture 19 mm inclus
-
Belle luminosité avec 6 fenêtres bois
-
Terrasse de 6,1 m² intégrée
-
Conforme au PLU (Plan Local d’Urbanisme)
🏡 Un espace à aménager selon vos envies
Le chalet Ibérica T2 peut être aménagé de nombreuses façons :
-
Petite résidence secondaire
-
Studio d’appoint ou gîte locatif
-
Bureau de jardin ou cabinet professionnel
-
Espace loisirs, musique ou atelier
📐 Plans 2D/3D personnalisés disponibles pour chaque projet sur mesure
🔧 Option : Isolation laine de roche complète (murs, toit, plancher)
🌲 Menuiseries PVC en option, bardage ou ossature bois possible
🌱 Une construction en bois responsable
Comme tous nos modèles, le chalet Ibérica T2 est fabriqué à partir de bois issu de forêts gérées durablement (label FSC). Une démarche respectueuse de l’environnement et propice à un habitat sain.
👉 En savoir plus sur le label FSC : fsc.org
📋 Informations techniques détaillées
-
Madriers : 68 mm
-
Empreinte de base : 6,16 × 8,66 m
-
Toiture : bardeaux bitume, 62 m²
-
Plancher : 28 mm – inclus
-
Hauteur murs : 2,295 m
-
Hauteur faîtage : 3,10 m
-
Débord de toit : 10 cm
-
Portes : 1 vitrée 50 %, 3 bois – 198 × 85 cm
-
Fenêtres : 5 doubles, 1 simple – 92 × 130, 52 × 50, 198 × 150 cm
-
Surface des murs extérieurs : 68 m²
-
Terrasse intégrée : 6,1 m²
📞 Informations & contact
Pour un devis ou plus d’informations sur le Chalet Ibérica :
📱 07 85 57 37 76
☎️ 05 53 61 30 11
📩 Ou envoyez-nous un message via le formulaire de contact
📞 Pour plus d’infos sur le montage, l’isolation ou les délais :
📲 07 85 57 37 76 | 📞 05 53 61 30 11
Descriptif :
Madriers de 68mm
Inclus :
volige de toit de 19mm
Plancher de 19mm
Cloisons en 68mm identique au plan
Menuiseries bois double vitrage : 4/12/4
En option et sur devis :
Isolation de toiture avec laine de Roche et accessoires (200mm)
Une isolation de 100mm par l’extérieur avec laine de Roche + un bardage
Une isolation sous le plancher
La couverture toiture : Bac acier ou couverture en tuiles bitumées






























Avis
Il n’y a pas encore d’avis.